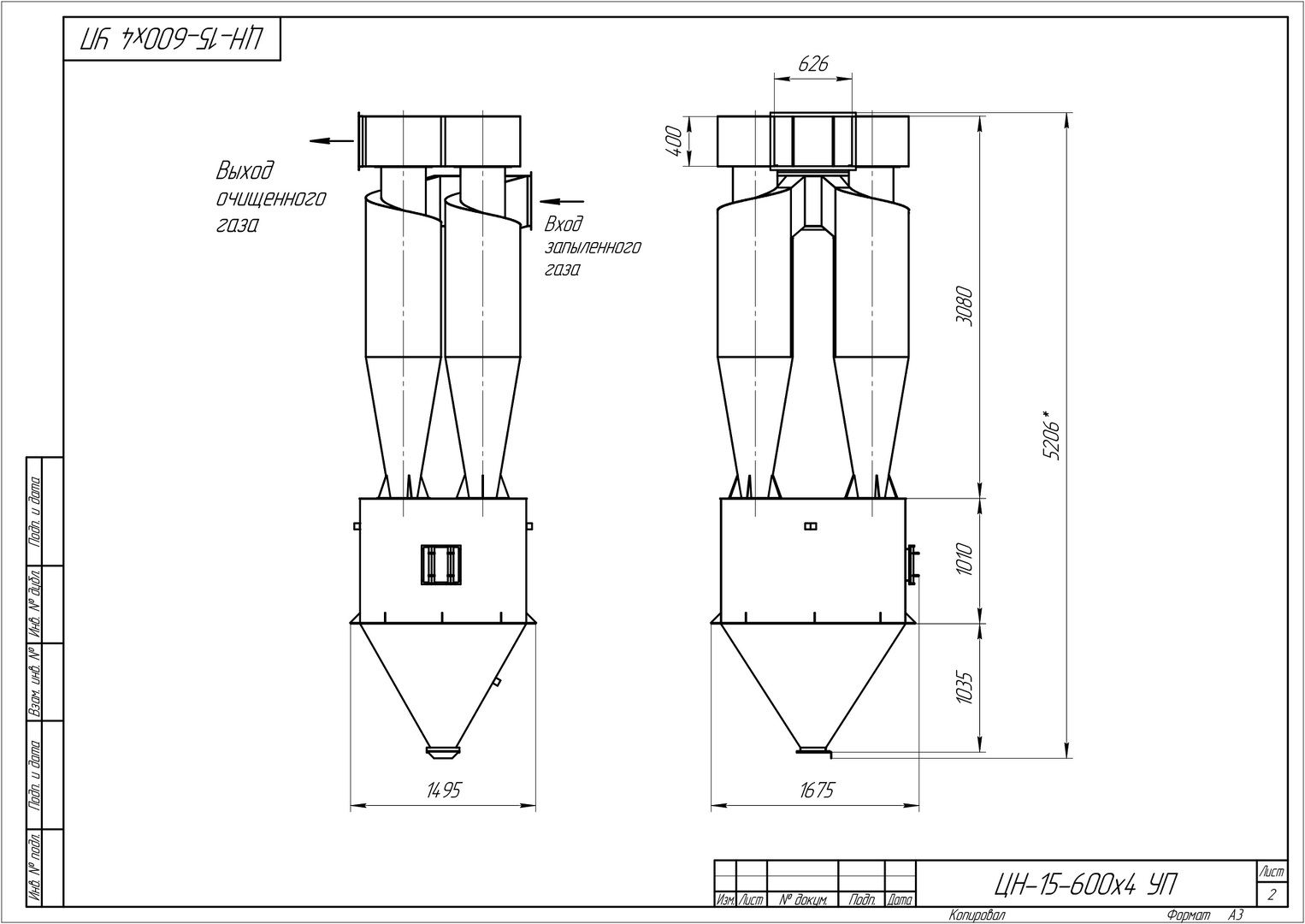
Золоуловители «Циклон» серии «ЦН» относятся к типу вертикальных золоуловителей, предназначенных для сухой инерционной очистки газов от летучей золы с максимальной температурой 260°С. Эксплуатируются в помещениях и вне помещений под навесом при температуре окружающего воздуха от -60°С до +40°С.
Золоуловители "Циклон" серии "ЦН"
Описание
Конструктивно, золоуловители серии «ЦН» состоят из 2-х основных частей:
- Аэродинамическая часть – один или группа циклонных элементов (корпусов) с криволинейными стенками. Присоединяется к источнику выброса дымовых газов и к отводящему газоходу очищенных газов «после себя».
- Золосборник. Представляет собой бункер пирамидальной формы с шибером для выгрузки золы.
Расшифровка наименования ЦН-15-400х4УП(СП)
- ЦН – циклон НИИОгаза;
- 15 – угол наклона входного патрубка относительно горизонтали, °C;
- 400 – внутренний диаметр цилиндрической части циклона, мм;
- 4 – количество циклонов в группе;
- У – с камерой очищенного газа в виде «улитки»;
- С – с камерой очищенного воздуха в виде сборника;
- П – пирамидальная форма бункера.
Принцип работы
Дымовой газ поступает во входное отверстие аэродинамической части циклона и движется вертикально сверху вниз между стенками циклонного (корпуса). Под действием центробежных сил, из потока очищаемого газа сепарируются твердые частицы, которые ссыпаются в бункер-золосборник. По мере необходимости, накопленная зола удаляется через шибер, расположенный в нижней части бункера. Очищенный газ отводится из золоуловителя через выходное отверстие, расположенное в аэродинамической части.
На поверхности бункера-золосборника имеется люк для обслуживания.
При монтаже золоуловителя, фланцевые соединения должны быть газоплотными с обязательным уплотнением асбестовым картоном или шнуром.
Технические характеристики
| Типоразмер | Производительность | Рабочий объем бункера, м³ | |
|---|---|---|---|
| при W=2,5 м/с | при W=2,5 м/с | ||
ЦН-15-300УП | 630 | 1000 | 0,17 |
ЦН-15-400УП | 1100 | 1800 | 0,146 |
ЦН-15-500УП | 1800 | 2800 | 0,205 |
ЦН-15-600УП | 2500 | 4100 | 0,327 |
ЦН-15-700УП | 3500 | 5500 | 0,465 |
ЦН-15-800УП | 4500 | 7200 | 0,56 |
ЦН-15-900УП | 5700 | 9200 | 0,64 |
ЦН-15-1000УП | 7100 | 11300 | 0,72 |
ЦН-15-1200УП | 10200 | 16200 | 1,07 |
ЦН-15-1400УП | 13900 | 22200 | 1,42 |
ЦН-15-300*2УП | 1270 | 2000 | 0,2 |
ЦН-15-300*2СП | 1270 | 2000 | 0,2 |
ЦН-15-400*2УП | 2300 | 3600 | 0,31 |
ЦН-15-400*2СП | 2300 | 3600 | 0,31 |
ЦН-15-500*2УП | 3500 | 5600 | 0,5 |
ЦН-15-500*2СП | 3500 | 5600 | 0,5 |
ЦН-15-600*2УП | 5100 | 8100 | 0,6 |
ЦН-15-600*2СП | 5100 | 8100 | 0,6 |
ЦН-15-700*2УП | 6900 | 11100 | 0,83 |
ЦН-15-700*2СП | 6900 | 11100 | 0,83 |
ЦН-15-800*2УП | 9000 | 14400 | 1,15 |
ЦН-15-800*2СП | 9000 | 14400 | 1,15 |
ЦН-15-900*2УП | 11400 | 18300 | 1,45 |
ЦН-15-900*2СП | 11400 | 18300 | 1,45 |
ЦН-15-400*4УП | 4500 | 7200 | 0,54 |
ЦН-15-400*4СП | 4500 | 7200 | 0,54 |
ЦН-15-500*4УП | 7000 | 11300 | 0,77 |
ЦН-15-500*4СП | 7000 | 11300 | 0,77 |
ЦН-15-600*4УП | 10200 | 16300 | 1,11 |
ЦН-15-600*4СП | 10200 | 16300 | 1,11 |
ЦН-15-700*4УП | 13800 | 22000 | 1,5 |
ЦН-15-700*4СП | 13800 | 22000 | 1,5 |
ЦН-15-800*4УП | 18100 | 28900 | 2,27 |
ЦН-15-800*4СП | 18100 | 28900 | 2,27 |
ЦН-15-900*4УП | 22800 | 36600 | 2,28 |
ЦН-15-900*4СП | 22800 | 36600 | 2,28 |
ЦН-15-500*6УП | 10600 | 16900 | 1,3 |
ЦН-15-500*6СП | 10600 | 16900 | 1,3 |
ЦН-15-600*6УП | 15300 | 24400 | 2 |
ЦН-15-600*6СП | 15300 | 24400 | 2 |
ЦН-15-700*6УП | 20800 | 33100 | 2,67 |
ЦН-15-700*6СП | 20800 | 33100 | 2,67 |
ЦН-15-800*6УП | 27100 | 43300 | 3,82 |
ЦН-15-800*6СП | 27100 | 43300 | 3,82 |
ЦН-15-900*6УП | 34300 | 54900 | 5,55 |
ЦН-15-900*6СП | 34300 | 54900 | 5,55 |
ЦН-15-500*8УП | 14100 | 22600 | 2,33 |
ЦН-15-500*8СП | 14100 | 22600 | 2,33 |
ЦН-15-700*4УП | 13800 | 22000 | 1,5 |
ЦН-15-700*4СП | 13800 | 22000 | 1,5 |
ЦН-15-800*4УП | 18100 | 28900 | 2,27 |
ЦН-15-800*4СП | 18100 | 28900 | 2,27 |
ЦН-15-900*4УП | 22800 | 36600 | 2,28 |
ЦН-15-900*4СП | 22800 | 36600 | 2,28 |
ЦН-15-500*6УП | 10600 | 16900 | 1,3 |
ЦН-15-500*6СП | 10600 | 16900 | 1,3 |
ЦН-15-600*6УП | 15300 | 24400 | 2 |
ЦН-15-600*6СП | 15300 | 24400 | 2 |
ЦН-15-700*6УП | 20800 | 33100 | 2,67 |
ЦН-15-700*6СП | 20800 | 33100 | 2,67 |
ЦН-15-800*6УП | 27100 | 43300 | 3,82 |
ЦН-15-800*6СП | 27100 | 43300 | 3,82 |
ЦН-15-900*6УП | 34300 | 54900 | 5,55 |
ЦН-15-900*6СП | 34300 | 54900 | 5,55 |
ЦН-15-500*8УП | 14100 | 22600 | 2,33 |
ЦН-15-500*8СП | 14100 | 22600 | 2,33 |